"IT'S TIME TO MOVE"

Now is the time to make that move and get away from it all. Here is your chance to start your new life at "Phippy's Farm".

“Phippy’s Farm” is situated on Iron Pot Creek only 17 minutes’ drive from Kyogle and only 60 & 80-minutes’ drive to both domestic and international airports at Ballina & the Gold Coast.

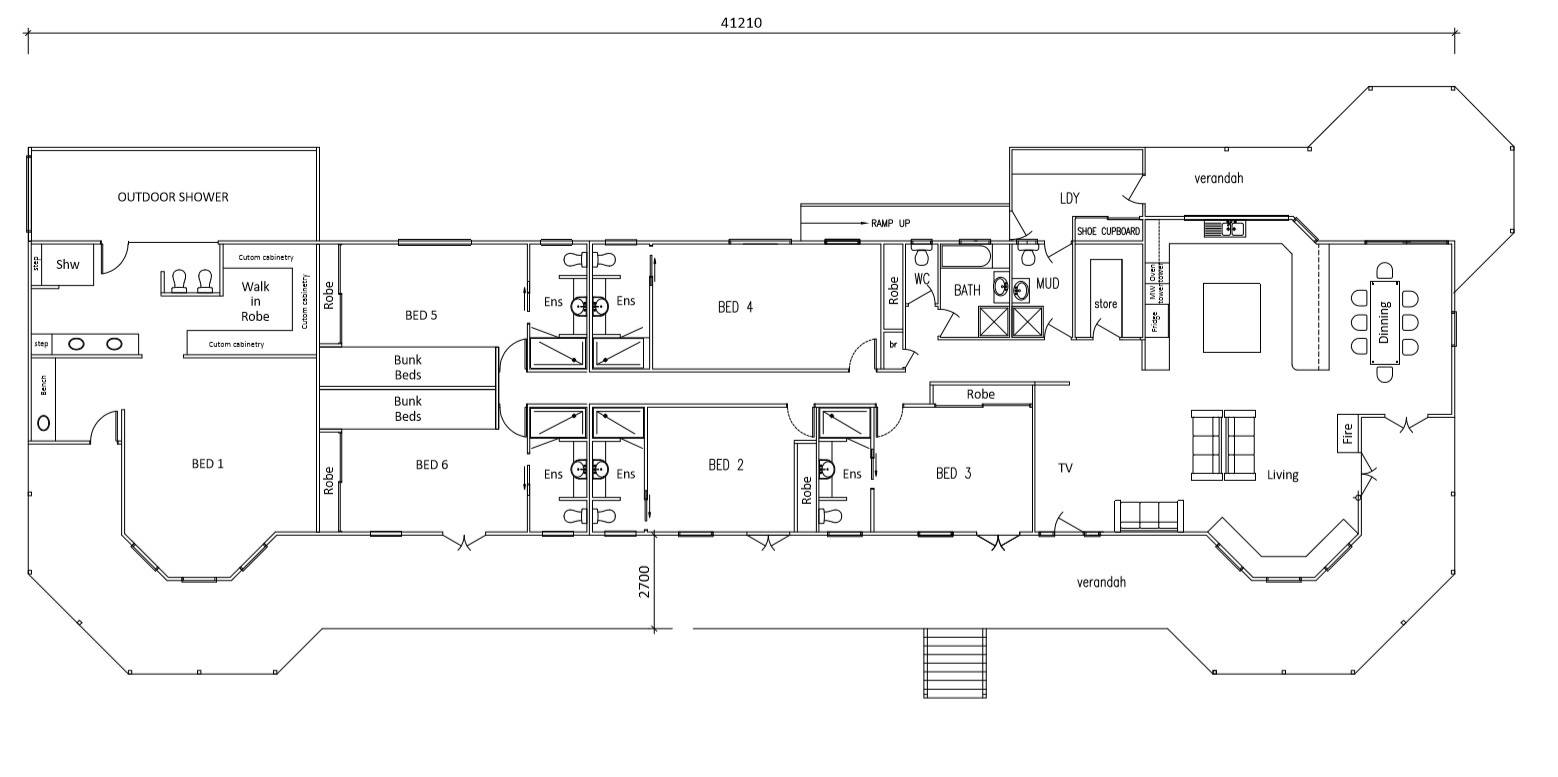
IMPROVEMENTS: Include an Architecturally designed 6 Bedroom / 7 Bathroom Homestead with spacious covered verandas on 3 sides with hardwood decking to take in the elevated views overlooking the tree studded Iron Pot Creek and surrounding hills and valleys. The house has been completely renovated and all the 6 bedrooms have ensuites. The new kitchen features all the modern conveniences available, with large Pantry, Caesar stone benches & Island, a large dining room, lounge and family room. There is Bamboo flooring throughout the living areas, carpeted bedrooms and tiled bathrooms. The house has ducted air conditioning in all rooms, wood heater in the lounge room, solar hot water, 20 panel solar back into the grid, laundry, toilet, rainwater storage tanks and separate garage and workshop. 

The master bedroom is like a self-contained unit, which has a large walk in robe, brekky bench, a beautiful en-suite and Courtyard with an outdoor shower.

In front of the main homestead there is the "family get together area" which has been conveniently placed near a magnificent old fig tree, where family and friends can enjoy each other’s company and sit around an open fire and talk and have a yarn about the day’s events.

The manager's residence is a comfortable 2-bedroom timber homestead with a double garage and carport.

Other outdoor improvements include a new 33m x 13m lockup machinery shed and workshop with a 4.4m suspended skillion and 6" concrete flooring. The doors are all electric and approx. 5m wide & 4.4m high.

The 2nd machinery and hay shed, is a 3-sided 36m x 12m shed with metal floor and a 3.6m suspended skillion. There is a 4-bay lockup steel shed used for cars and ATV's plus several other outbuildings located around the farm.

There are two sets of fully equipped stockyards with the main yards having its own vet crush, scales, covered working area and a spray race. The creek side yards also have a vet crush and covered working area.

WATER: 1.5km of Iron Pot Creek Frontage, Pine Gully, dams, water troughs which are feed by a new solar watering system which pumps to header tanks and gravity fed back to the troughs. There are good swimming spots along the creek and plenty of fish.

IRRIGATION: 2 Irrigation licenses totalling 160ML of Water from Iron Pot Creek. New underground mains with 4" Hydrants are located on the creek flats and some of the low hill country. The creek is feed by Toonumbar Dam so there is always ample water for irrigation.

LAND: Is just the typical beautiful picturesque rolling Northern Rivers country with its alluvial creek flats, gentle loamy hills and basalt ridges and valley’s covered with Rhodes, Seteria, Legumes, Natural Grasses and good stands of Hardwood & Rainforest Trees. Plenty of shade for the cattle.

FENCING: The property is fully fenced into several grazing and holding paddocks with laneways leading to both sets of stockyards. Most of the interior fences are solar electric, with the boundaries being mainly timber and steel post with barb wire.

SUBDIVISION: The property has council approval to create 4 separate titles

LIVESTOCK: Comfortably runs 100+ cows and calves at valuation

MACHINERY: The successful purchaser will be offered all Plant and Machinery at valuation.

With all what is going on in the world today, do not miss this unique opportunity to purchase one of the best properties on the North Coast with certainly the best improvements.

 

 

 

 

6 7 18 467.00 ac
Address 120 Ghinni Ghi Road, Kyogle
Price SOLD
Property Type Rural
Property ID 893
Land Area 467.00 ac
Floor Area 542 m2

Agent Details

Mike Smith photo

Mike Smith

0413 300 680
View Profile